Проект бани ''ПБРБ - 0417''
Выберите материал
Стоимость от
руб
Предложение не является публичной офертой. Стоимость является ориентировочной и приведена исключительно в информационных целях.
Характеристики
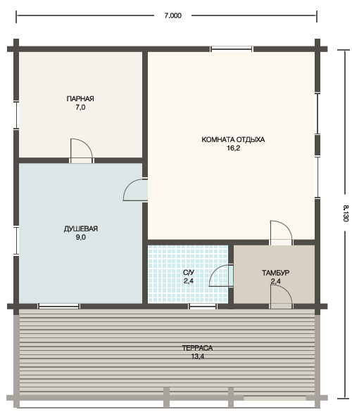
Площадь:
50.00 м2
Этажность:
Одноэтажная
Габариты:
7х8 м
Материал стен:
Профилированный брус
С комнатой отдыха:
Да
Описание проекта
Проект "ПБРБ - 0417" - красивая одноэтажная парная из профилированного бруса. Площадь строения 50.00 м2 с размерами 8*7.
Компания Туапсе ТГВ-строй осуществляет качественное строительство бани "ПБРБ - 0417". Обращаем ваше внимание, на то, что стоимость строительства напрямую зависит от комплектации и технологии строительства. Для предоставления подробной информации и консультирования, можно обратится по номеру: +7 (969) 999-24-71.
Компания Туапсе ТГВ-строй осуществляет качественное строительство бани "ПБРБ - 0417". Обращаем ваше внимание, на то, что стоимость строительства напрямую зависит от комплектации и технологии строительства. Для предоставления подробной информации и консультирования, можно обратится по номеру: +7 (969) 999-24-71.
Получите готовый проект на почту
Оставьте заявку на получение проекта на почту
Цены на строительство домов
| Материал | Под ключ | Коробка | Теплый контур | Черновая |
|---|---|---|---|---|
| ЛСТК | 57 900 руб | 30 000 руб | 34 500 руб | 38 700 руб |
| SIP-панели | 57 900 руб | 30 000 руб | 34 500 руб | 38 700 руб |
| Каркас | 57 900 руб | 30 000 руб | 34 500 руб | 38 700 руб |
| Пеноблок | 85 000 руб | 55 000 руб | 59 700 руб | 64 500 руб |
| Силикатный блок | 85 000 руб | 55 000 руб | 59 700 руб | 64 500 руб |
| Газоблок | 85 000 руб | 55 000 руб | 59 700 руб | 64 500 руб |
| Керамзитоблок | 85 000 руб | 55 000 руб | 59 700 руб | 64 500 руб |
| Арболитовый блок | 85 000 руб | 55 000 руб | 59 700 руб | 64 500 руб |
| Керамический блок | 85 000 руб | 55 000 руб | 59 700 руб | 64 500 руб |
| Кирпич | 89 000 руб | 59 000 руб | 63 800 руб | 68 000 руб |
| Рубленое бревно | 86 000 руб | 61 000 руб | 64 800 руб | 66 000 руб |
| Лафет | 86 000 руб | 61 000 руб | 64 800 руб | 66 000 руб |
| Клееный брус | 86 000 руб | 61 000 руб | 64 800 руб | 66 000 руб |
| Брус строганый | 86 000 руб | 61 000 руб | 64 800 руб | 66 000 руб |
| Брус | 86 000 руб | 61 000 руб | 64 800 руб | 66 000 руб |
| Двойной брус | 86 000 руб | 61 000 руб | 64 800 руб | 66 000 руб |
| Профилированный брус | 86 000 руб | 61 000 руб | 64 800 руб | 66 000 руб |
| Оцилиндрованное бревно | 86 000 руб | 61 000 руб | 64 800 руб | 66 000 руб |
Доп.услуги
| Наименование | Цена. от |
|---|---|
| Дом из пеноблоков | 320 руб |
| Дом из газоблоков | 2000 руб |
| Дом из керамзитоблоков | 320 руб |
| Дом из силикатных блоков | 2000 руб |
| Дом из бруса | 320 руб |
| Дом из силикатных блоков | 2000 руб |
| Демонтаж вентиляционной решетки | 320 руб |
| Демонтаж вентиляционной решетки | 2000 руб |
| Демонтаж вентиляционной решетки | 320 руб |
| Демонтаж вентиляционной решетки | 320 руб |
Спецпредложения
Ипотека на строительство
Ипотека с нами - легко и доступно!
от 6%
Первонач. взнос от 10%
до 30 лет
Ипотека до
10 000 000 руб
Ипотечный калькулятор
Расчитайте стоймость ипотеки онлайн
Стоимость дома
₽
Ставка по ипотеке
%
Срок
лет
Первоначальный взнос
₽
Ваш платеж
от
₽/мес
Сумма ипотеки
₽
Срок
лет
Ставка по ипотеке
%
Сделай
1
шаг к новому дому
Оставьте заявку и наши специалисты свяжутся с вами в ближайшее время
2
Согласуем
Подберем проект для вас, внесем изменения под параметры вашего дома
3
Подпишем
Обговариваем сроки работ и удобный для Вас способ оплаты, заключаем договор
4
Доставим
Бережно доставим и выгрузим материалы для строительства
5
Построим
Проведем полный комплекс строительных и отделочных работ
6
Сдадим
Вы принимаете нашу работу, подписываем акт сдачи-приемки дома, и вы заезжаете в дом своей мечты
Спецпредложения
Чтобы быть уверенным в качественном доме -
важно выбрать надежного подрядчика
Дополнительные услуги для вашего проекта
Электромонтажные работы
Профессиональная установка электропроводки гарантирует безопасность и удобство использования всех электрических приборов в доме. Наши специалисты подбирают надежные материалы и обеспечивают грамотную разводку, чтобы минимизировать риск перебоев и повысить долговечность системы.
Средняя оценка построенного дома - 9.7 на основании 7 отзывов и 7 оценок


